相关新闻:
齐齐哈尔体育馆坍塌事故最后一名失联人员已被找到 相关责任人已被控制
齐齐哈尔体育馆坍塌事故牵动人心。
7月24日上午10时,记者从齐齐哈尔市第三十四中学校体育馆楼顶坍塌事故救援指挥部获悉,最后一名被困学生已搜救到,已无生命体征。此次事故共造成11人死亡,事故调查工作正在全面推进中。目前,相关责任人已被控制。
事发前,体育馆屋顶堆放大量袋装物,据新华社,施工单位违规将珍珠岩堆置屋顶,降雨使之增重,导致屋顶荷载增大引发坍塌。
齐齐哈尔市民李晨(化名)是当地一家工程公司的负责人。7月24日,李晨告诉澎湃新闻,23日约16时许,他接到通知,然后带着30多名工人前往齐齐哈尔市第三十四中学参与救援工作。
李晨回忆,现场救援人员有几百人之多。
“我和我的工人们从昨天下午一直干到今天(24日)早上7点”,李晨介绍,因为坍塌,现场有大量建筑垃圾,他们的主要任务就是清理转运这些建筑垃圾,“有混凝土块、苯板什么的”。李晨组织工人形成流水线,“人倒人的方式比较快,我在现场负责指挥工人”。
李晨说,转运建筑垃圾时确实发现现场有成包的珍珠岩,“但是有多少我也不知道,救人心切,没有查数,就想着以最快的速度把人救出来”。
据黑龙江日报微信公众号7月24日上午消息,7月23日14时56分齐齐哈尔市消防救援支队指挥中心接报,齐齐哈尔市第三十四中学体育馆发生屋顶坍塌,齐齐哈尔市消防救援支队迅速调集力量赶赴现场开展救援。经核实,事故发生时,馆内共有19人,其中4人自行脱险,15人被困。
截至24日5时30分,已搜救出14人,其中4人已无生命体征,6人经全力救治无效死亡,4人无生命危险。
事故发生后,黑龙江省委书记许勤,省长梁惠玲第一时间作出指示并赶赴现场,部署被困人员搜救、伤员救治、事故调查等工作,强调要全力搜救被困人员,严防发生次生事故。要统筹调配省市医疗救治力量,不惜一切代价全力救治受伤人员。要迅速开展事故调查,依法依规严肃追究责任。要举一反三,全面排查整治全省校园、体育场馆、建筑施工等领域安全隐患,切实维护人民群众生命财产安全和社会大局稳定。
@新华社 官方微博24日上午发布消息称,经现场初步调查,与体育馆毗邻的教学综合楼施工过程中,施工单位违规将珍珠岩堆置体育馆屋顶。受降雨影响,珍珠岩浸水增重,导致屋顶荷载增大引发坍塌。深入调查仍在进行中。目前,教学综合楼施工单位责任人已被公安机关控制。
另据黑龙江当地媒体龙头新闻23日晚间消息,7月23日晚,按照黑龙江省委、省政府安排部署,省委常委、常务副省长王一新主持召开全省安全生产工作视频会议,通报齐齐哈尔市龙沙区第三十四中学体育馆发生坍塌事故等近期几起安全事故情况,就黑龙江省近期连续发生的事故进行深刻反思,并就如何采取切实有效措施,坚决遏制事故多发势头,确保当前和今后一个时期我省安全生产形势稳定进行安排部署。
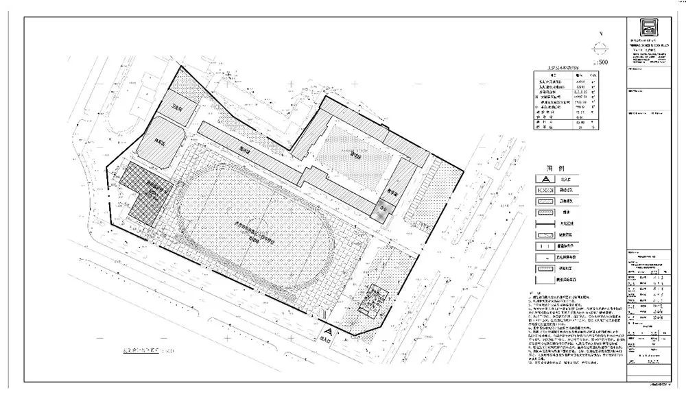
澎湃新闻记者注意到,齐齐哈尔市市今年3月24日就曾公布了《齐齐哈尔市第三十四中学校校园新建附属综合楼项目建设工程设计总平面修改批前公示》。根据公示信息,齐齐哈尔市第三十四中学校校园新建附属综合楼建设工程设计总平面修改项目位于永安大街西侧,新文路北侧。
根据这份公示的平面图显示,上述坍塌的体育馆位于正在施工的教学综合楼和卫生间之间,并与齐齐哈尔市第三十四中学运动场相邻。

齐齐哈尔市第三十四中学校校园新建附属综合楼项目建设工程设计总平面。来源:齐齐哈尔市政府网站
编辑: 陈奉凤纠错:171964650@qq.com


















